Start typing & press "Enter" or "ESC" to close
Inicio
Sector A
Sector B
Contacto
SECTOR B
Puede seguirnos para más información en nuestras RRSS
Facebook
Instagram
Mail
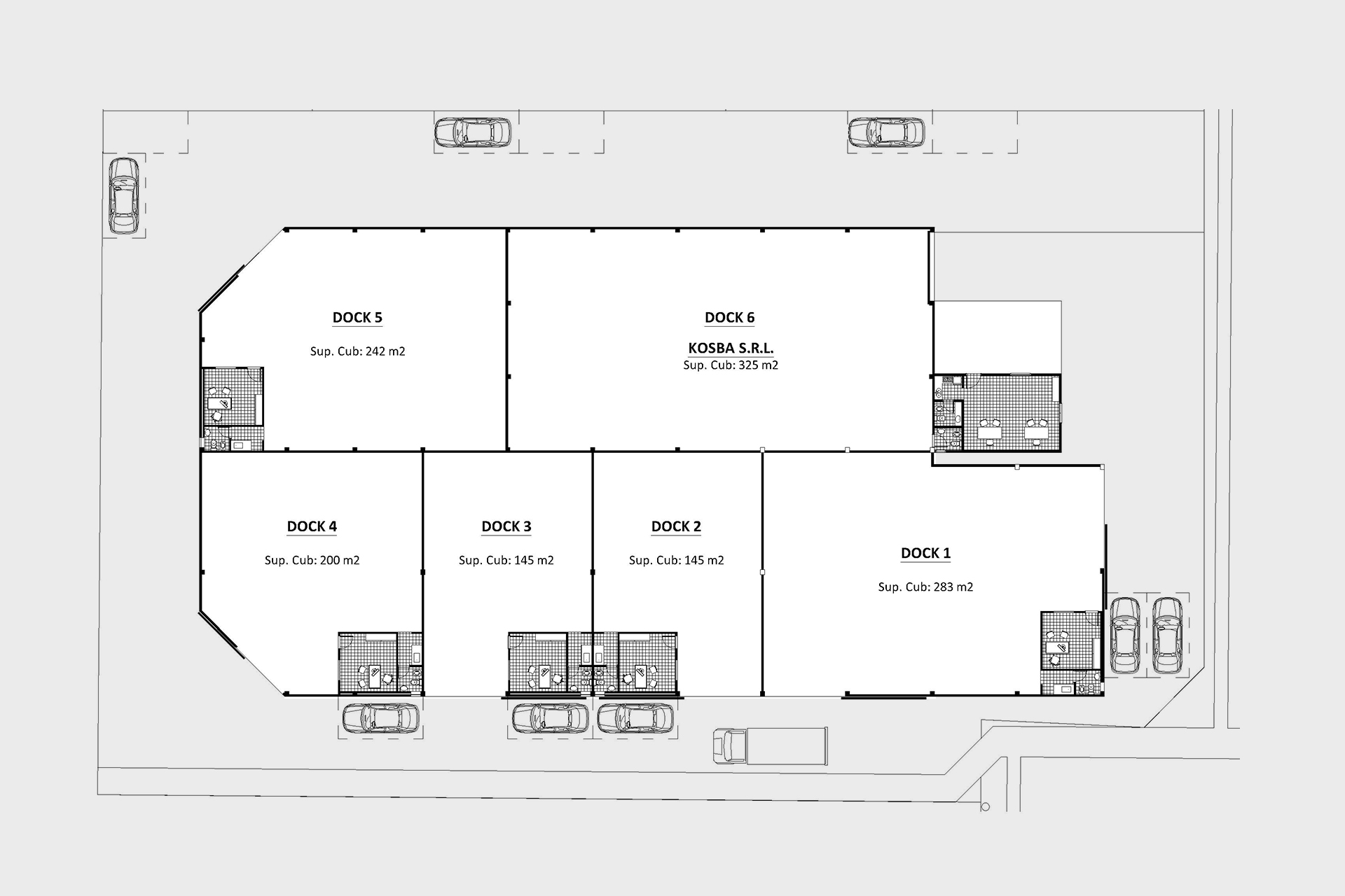
El SECTOR B se compone de seis unidades funcionales que totalizan 1650 metros cuadrados cubiertos.
Más información
Tipo de construcción, estructura metálica reticulada.
Cubierta de techo de chapa con aislación.
Luz natural por cubierta de techo con segmento traslúcido,
Columnas y encadenados de H°A° en primer nivel.
Piso alisado de H°A° H21 de 15cm de espesor.
Mampostería de bloques de cemento en primer nivel y chapa trapezoidal color en segundo nivel.
Portones metálicos corredizos de 5,0m de ancho x4,0m de alto.
Estacionamiento para vehículo.
Oficina en Planta Baja c/inst. A.A.
Kitchenette con mesada y lavado, termotanque eléctrico bajo mesada.
Baño c/inodoro, bidet y lavamanos.
Tablero eléctrico con energía trifásica.